Bilocale in vendita

Crema, Via Luigi D'Andrea
€ 120.000
2 locali 2 locali
94 Mq 94 Mq
1 bagno 1 bagno

Bilocale in vendita

Crema, Via Luigi D'Andrea

Descrizione annuncio

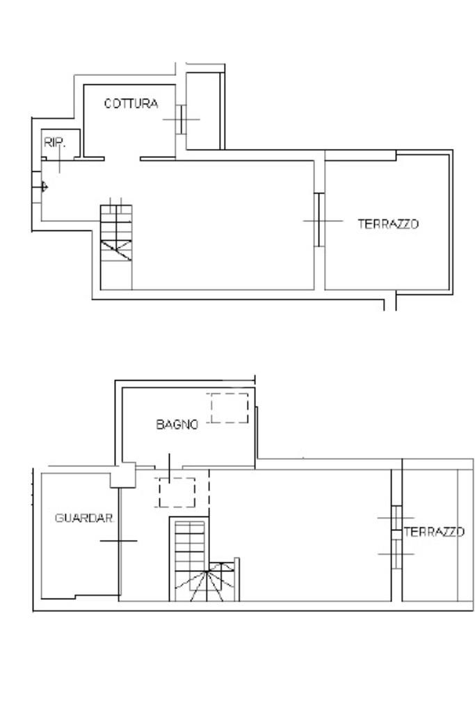
CREMA: nel tranquillo quartiere residenziale di Ombriano, proponiamo in vendita un luminoso bilocale su due livelli, situato al sesto piano con ascensore.

L’appartamento si apre su un’ampia e luminosa zona giorno, valorizzata da una grande porta finestra che conduce a un generoso terrazzo vivibile. Quest’ultimo è reso fruibile in ogni stagione grazie alla presenza di una veranda termica con sistema di apertura e chiusura elettrificato. Alla sinistra della zona giorno è presente una comoda nicchia attrezzata con armadio su misura, perfetta per riporre cappotti e scarpe.
La cucina ad angolo a vista, completa di tutti gli elettrodomestici, si affaccia su un secondo balcone verandato, ideale come dispensa.

Una scala interna conduce al piano superiore, dove troviamo una grande camera matrimoniale, dotata di climatizzatore e pompa di calore, con accesso ad un ulteriore balcone vivibile.
Accanto alla camera è stata realizzata una capiente cabina armadio, nascosta da eleganti porte scorrevoli.
Il bagno finestrato con velux è dotato di vasca/doccia e di una comoda nicchia lavanderia ben organizzata.

Completano la proprietà una cantina spaziosa e un box auto al piano terra, facilmente accessibile.

Si specifica che l'immobile viene lasciato parzialmente arredato.

Per informazioni, visite senza impegno e valutazione GRATUITA del tuo immobile chiama il 0373 38009 / 342 1865248 - TECNOCASA CREMA, Via Piacenza 21.

LE ORIGINI DI CREMA: situata nella bassa Pianura Padana, è il centro principale della provincia dopo il capoluogo Cremona e dà il proprio nome a tutta la parte settentrionale del territorio provinciale: il Cremasco. Le origini di Crema sono legate all'invasione longobarda del VI secolo il nome deriva probabilmente dal termine longobardo 'Crem' che significa 'altura'.

Mostra tutto

Nelle vicinanze

Trasporto pubblico Trasporto pubblico
D'Andrea/Pagliari
D'Andrea/Pagliari
80 m
Trasporto pubblico
210 m
Ricariche auto elettriche Ricariche auto elettriche
EnerCoop Centro Commerciale Gran Rondò
1,0 Km
Crema Diesel S.p.A. | EnelX
2,0 Km
Via Piacenza
2,7 Km
Scuole Scuole
INFANZIA PARITARIA “Ombriano”
300 m
Scuole
370 m
Scuola Secondaria di Primo Grado Alfredo Galmozzi
450 m
Scuola Primaria Gianni Rodari
760 m
Centro Formazione Professionale
1,9 Km
Farmacia Farmacia
Farmacia
240 m
Parafarmacia Crispi
2,3 Km
Dottor Tirloni
2,3 Km
Farmacia Bruttomesso
2,6 Km
Conte Negri
2,7 Km
Ospedali Ospedali
Ospedale Maggiore di Crema
2,2 Km
Supermercati Supermercati
Buon Mercato
1,4 Km
LIDL
1,7 Km
La Girandola
1,9 Km
D PIù
1,9 Km
La Girandola - Interspar
1,9 Km
Negozi Negozi
La Casa del Pane
230 m
Singolare
240 m
Happy Sposi
280 m
La Dispensa
330 m
Belli
870 m
Bar Bar
Bar Castello
250 m
Macchi
480 m
Bar Parco
580 m
ARCI Ombriano
680 m
Demy
690 m
Ristoranti Ristoranti
Il Paradiso del Sushi
170 m
Pepe Verde
300 m
Mezzo
560 m
Ristorante Cinese Oriente
730 m
Il Pappagallo
890 m
Mostra tutto

Caratteristiche

Rif.:
61128679
Piano:
6 di 7 con ascensore (Piano su più livelli)
Box:
1
Balconi:
2
Terrazzi:
1
Camere da letto:
1
Mostra tutto
Prezzo Prezzo
€ 120.000
Rata mutuo Rata mutuo
€ 565 / mese
Spese annue Spese annue
€ 1.000
Proponi il tuo prezzoProponi il tuo prezzo
Immobile valutato con T·Valuta

Classe Energetica

E
E
E
E
E
E
E
E
E
EP globale non rinnovabile:
206.99 kW h/m² anno
EP invernale del fabbricato:
EP estiva del fabbricato:
Anno di costruzione:
2000
Riscaldamento:
Autonomo
Tipo impianto:
A radiatori
Tipo alimentazione:
Metano

Ti interessa visionare l'immobile?

Fissa un appuntamento  Fissa un appuntamento

Richiedi informazioni

Clicca su Leggi per aprire l'informativa
* Questi campi sono obbligatori

Calcola il tuo mutuo

Semplice e senza impegno
Anticipo

( % )
Mutuo

( % )

pochi semplici passi

inserisci i tuoi dati
Questionario completato
Grazie per aver richiesto un appuntamento senza impegno con un nostro Consulente del Credito e Assicurativo.

Hai inserito correttamente tutti i dati necessari e a breve riceverai una e-mail con un link da convalidare per inviare i tuoi dati.
Affiliato
Tecnocrema Srl
Via Piacenza, 21 26013 Crema (CR)

Il nostro staff


  • Claudio Pezzotti
    Affiliato

  • Lorenzo Gatti
    Collaboratore

  • Simone Omacini
    Responsabile

  • Erika Pacchioni
    Collaboratrice
Via Piacenza, 21 26013 Crema (CR)
Zona: Centro Sud-Ombriano-Sabbioni-Zona Bosco
Mostra su mappa
Orari: Dal Lunedì al Venerdì dalle 9.00 alle 12.30 e dalle 14.30 alle 20.00, Sabato dalle 9.00 alle 12.30 e dalle 14.30 alle 18.00. Domenica su appuntamento.
Affiliato
Tecnocrema Srl
Via Piacenza, 21 26013 Crema (CR)

2026 Tecnocasa Franchising S.p.A. - P. IVA 08365160152 - Via Monte Bianco 60/A 20089 Rozzano (MI). Ogni agenzia ha un proprio titolare ed è autonoma. Privacy policy | Policy utilizzo | Cookie policy